ITSUMO Dessert Shop Redefines Commercial Typology in Batam
The ITSUMO Dessert Shop in Batam, Indonesia, designed by kousou inc. Jakarta, in collaboration with Svetlin Petrov, represents an architectural intervention within the typical ruko (shop-house) typology of the city’s commercial areas. The project introduces a spatial and material strategy that contrasts with the surrounding built environment, known for its utilitarian structures and rapid-development aesthetics. Located in a busy port city context, the shop responds to its surroundings with a minimalist white facade, offering a visual counterpoint to Batam’s typically colorful and artificial material palette. This exterior treatment signals a shift in spatial experience, moving toward interior calm and spatial restraint.
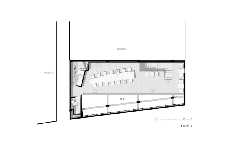
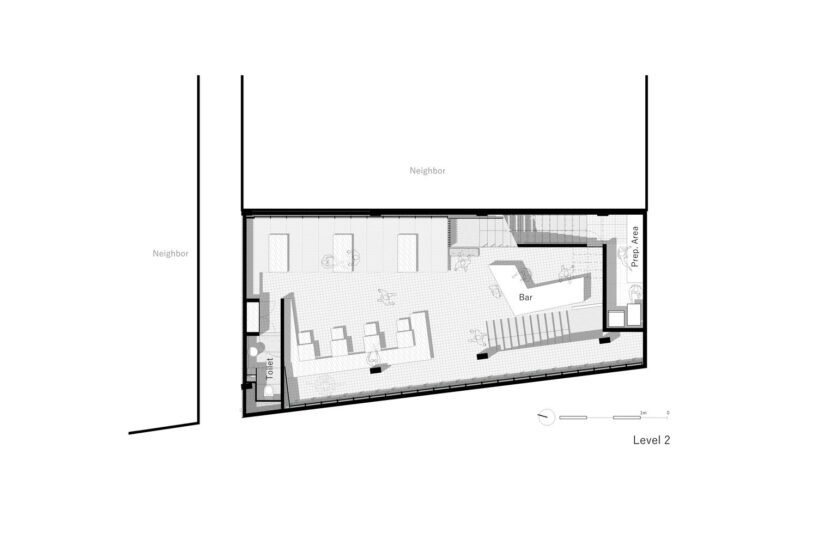
A key feature of the design is an interior courtyard, integrated to bring natural light and controlled exposure to rain into the building. The courtyard acts as both a spatial and environmental element, supporting ventilation and creating a sensory connection to weather conditions. Hidden rain gutters, placed between the facade wall and skylight, allow rainwater to enter the courtyard during storms while controlling drainage through a secondary concealed channel.

all images by Kung Photograph
interior design focuses on a monochromatic material palette
Internally, the design moves away from decorative complexity, focusing on a monochromatic material palette dominated by black. To prevent the dark tones from creating a somber atmosphere, the interior incorporates variations in texture and finish. Materials such as natural stone, stained wood, and metal contribute to a layered and tactile quality. Exposed gray concrete surfaces and brown-toned elements provide contrast and depth within the overall composition. The interior layout positions a central work and display area while preserving and exposing parts of the original building structure. This approach creates continuity between past and present states of the site. The decision to leave portions of the original structure visible reflects an interest in material honesty and site-specific adaptation.
The design process followed an iterative model, with continuous dialogue between the architects at kousou inc. Jakarta, client, and construction team. The project required extensive material research and sample production to achieve the desired tactile and visual effects, particularly for the facade textures and interior finishes.

kousou uses Architecture as a Tool for Urban Reframing
In contrast to ITSUMO’s other locations, the Batam project employs stricter geometry and sharper formal language. This decision aligns with the project’s goal of creating site-specific identities for each ITSUMO outlet while maintaining brand consistency.
The project positions architecture as a tool for spatial transformation within dense, function-driven urban contexts. Through restrained material selection, attention to detail, and integration of environmental factors such as rain and light, the ITSUMO Dessert Shop presents an example of how commercial spaces can adopt a design-driven approach to reframe user experience and architectural presence in a rapidly developing urban setting.








1/8
project info:
name: Itsumo Dessert Shop, Batam
architect: kousou inc. Jakarta | @kousou_inc
lead architect: Svetlin Petrov | @svetlin__petrov
location: Kecamatan Lubuk Baja, Batam, Indonesia
area: 300 sqm
general constructing: Room Studio
engineering, consulting, lighting: ERRELUCE
photographer: Kung Photograph | @kungphotograph
designboom has received this project from our DIY submissions feature, where we welcome our readers to submit their own work for publication. see more project submissions from our readers here.
edited by: christina vergopoulou | designboom





